
La oportunidad de inversión más rentable en Larimar City & Resort
Descubre Prime Towers, la joya oculta de Larimar City & Resort, donde la rentabilidad se combina con la sofisticación estos apartamentos de lujo en Punta Cana a 100 metros sobre el nivel del mar. Gracias a los precios de Larimar City, Prime Towers destaca como la opción más inteligente para inversores que buscan obtener los mejores retornos en la próspera zona costera de República Dominicana.









Prime Towers, la opción más inteligente para inversores que buscan obtener los mejores retornos.
Prime Towers ofrece tres magníficas vistas panorámicas para elegir y una selección de tres tipos de apartamentos que combinan versatilidad y calidad. Esta localización exclusiva garantiza no solo un estilo de vida privilegiado, sino también una inversión sólida y prometedora para los que buscan apartamentos en venta en Punta Cana frente al mar.
Punta Cana 23000, República Dominicana
Torre 4 | Nivel 1
Nota: Las superficies expresadas, el dimensionamiento de pilares, los niveles, escalones de escaleras, la situación de las bajantes, conductos de ventilación y ventanas podrán experimentar variaciones durante la obra por exigencias del proyecto de ejecución, exigencias técnicas o jurídicas, o con objeto de mejorar la funcionalidad de las viviendas. Las texturas y los materiales, así como el mobiliario expresado en este plano son meramente orientativos e informativos. Algún giro de puerta o disposición de sanitarios podrá sufrir alguna variación. Las viviendas se venden sin amueblar.
Torre 4 | Nivel 2
Nota: Las superficies expresadas, el dimensionamiento de pilares, los niveles, escalones de escaleras, la situación de las bajantes, conductos de ventilación y ventanas podrán experimentar variaciones durante la obra por exigencias del proyecto de ejecución, exigencias técnicas o jurídicas, o con objeto de mejorar la funcionalidad de las viviendas. Las texturas y los materiales, así como el mobiliario expresado en este plano son meramente orientativos e informativos. Algún giro de puerta o disposición de sanitarios podrá sufrir alguna variación. Las viviendas se venden sin amueblar.
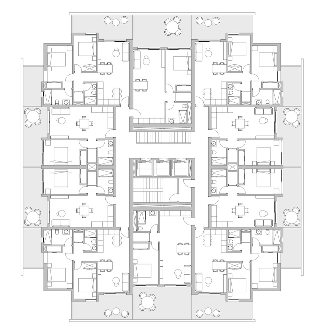
Torre 4 | Nivel 3-14
Nota: Las superficies expresadas, el dimensionamiento de pilares, los niveles, escalones de escaleras, la situación de las bajantes, conductos de ventilación y ventanas podrán experimentar variaciones durante la obra por exigencias del proyecto de ejecución, exigencias técnicas o jurídicas, o con objeto de mejorar la funcionalidad de las viviendas. Las texturas y los materiales, así como el mobiliario expresado en este plano son meramente orientativos e informativos. Algún giro de puerta o disposición de sanitarios podrá sufrir alguna variación. Las viviendas se venden sin amueblar.
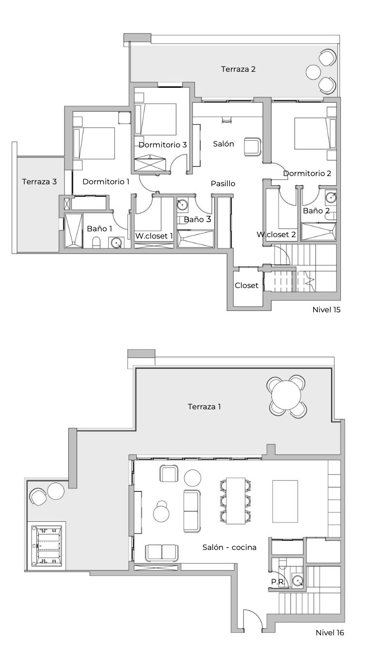
Torre 1 | Nivel 15
Nota: Las superficies expresadas, el dimensionamiento de pilares, los niveles, escalones de escaleras, la situación de las bajantes, conductos de ventilación y ventanas podrán experimentar variaciones durante la obra por exigencias del proyecto de ejecución, exigencias técnicas o jurídicas, o con objeto de mejorar la funcionalidad de las viviendas. Las texturas y los materiales, así como el mobiliario expresado en este plano son meramente orientativos e informativos. Algún giro de puerta o disposición de sanitarios podrá sufrir alguna variación. Las viviendas se venden sin amueblar.
Torre 1 | Nivel 16
Nota: Las superficies expresadas, el dimensionamiento de pilares, los niveles, escalones de escaleras, la situación de las bajantes, conductos de ventilación y ventanas podrán experimentar variaciones durante la obra por exigencias del proyecto de ejecución, exigencias técnicas o jurídicas, o con objeto de mejorar la funcionalidad de las viviendas. Las texturas y los materiales, así como el mobiliario expresado en este plano son meramente orientativos e informativos. Algún giro de puerta o disposición de sanitarios podrá sufrir alguna variación. Las viviendas se venden sin amueblar.
Apartamentos 101 – 103 – 104 – 107
Superficie interior: 784,62 S.Q. FT. Superficie de terraza: 717,05 S.Q. FT.
72,92 S.Q. M. 66,64 S.Q. M. 139,56 S.Q. M. Superficie total:1.501,67 S.Q. FT.
2 DORMITORIOS 2 BAÑOS TERRAZA PRIVADA
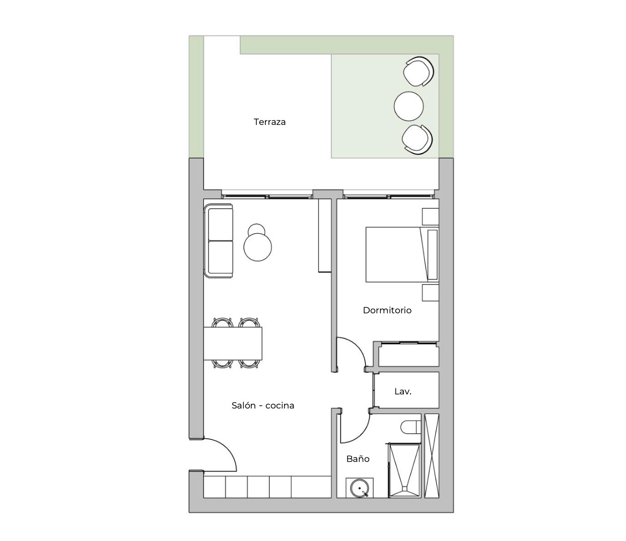
Apartamentos 102 – 108
Superficie interior: Superficie de terraza: Superficie total: 683,37 S.Q. FT. 311,07 S.Q. FT. 994,44 S.Q. FT. 63,51 S.Q. M. 28,91 S.Q. M. 92,42 S.Q. M.
1 DORMITORIO 1 BAÑO TERRAZA PRIVADA PRIVADA
Apartamentos 105 – 106
Superficie interior: Superficie de terraza: Superficie total: 575,98 S.Q. FT. 187,55 S.Q. FT. 763,53 S.Q. FT. 53,53 S.Q. M. 17,43 S.Q. M. 70,96 S.Q. M.
1 DORMITORIO 1 BAÑO TERRAZA PRIVADA
Apartamentos 201 – 205 – 207 – 210
Superficie interior: Superficie de terraza: Superficie total: 784,62 S.Q. FT. 579,86 S.Q. FT. 1.364,48 S.Q. FT. 72,92 S.Q. M. 53,89 S.Q. M. 126,81 S.Q. M.
2 DORMITORIOS 2 BAÑOS TERRAZA PRIVADA
Apartamentos 202 – 206
Superficie interior: Superficie de terraza: Superficie total: 683,37 S.Q. FT. 268,46 S.Q. FT. 951,83 S.Q. FT. 63,51 S.Q. M. 24,95 S.Q. M. 88,46 S.Q. M.
1 DORMITORIO 1 BAÑO TERRAZA PRIVADA
Apartamentos 203 – 204 – 208 – 209
Superficie interior: Superficie de terraza: Superficie total: 575,98 S.Q. FT. 187,55 S.Q. FT. 763,53 S.Q. FT. 53,53 S.Q. M. 17,43 S.Q. M. 70,96 S.Q. M
1 DORMITORIO 1 BAÑO TERRAZA PRIVADA
Apartamentos N01 – N05 – N07 – N10
Superficie interior: Superficie de terraza: Superficie total: 784,62 S.Q. FT. 307,84 S.Q. FT. 1.092,46 S.Q. FT. 72,92 S.Q. M. 28,61 S.Q. M. 101,53 S.Q. M.
2 DORMITORIOS 2 BAÑOS TERRAZA PRIVADA
Apartamentos N02 – N06
Superficie interior: Superficie de terraza: Superficie total: 683,37 S.Q. FT. 268,46 S.Q. FT. 951,83 S.Q. FT. 63,51 S.Q. M. 24,95 S.Q. M. 88,46 S.Q. M.
1 DORMITORIO 1 BAÑO TERRAZA PRIVADA
Apartamentos N03 – N04 – N08 – N09
Superficie interior: Superficie de terraza: Superficie total: 575,98 S.Q. FT. 187,55 S.Q. FT. 763,53 S.Q. FT. 53,53 S.Q. M. 17,43 S.Q. M. 70,96 S.Q. M.
1 DORMITORIO 1 BAÑO TERRAZA PRIVADA
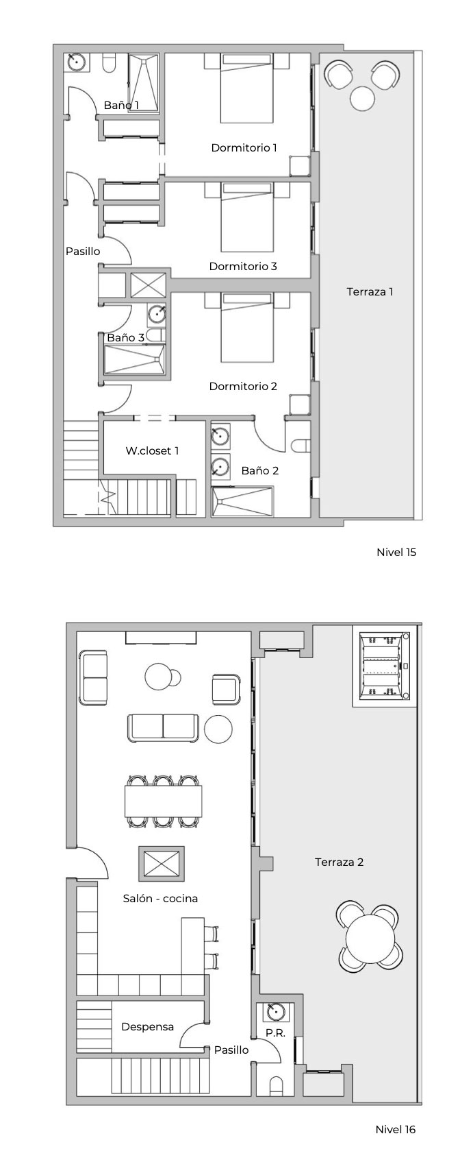
Apartamentos 1501 – 1502 – 1504 – 1505
Superficie interior: Superficie de terraza: Superficie total: 1.926,79 S.Q. FT. 1.115,60 S.Q. FT. 3.042,39 S.Q. FT. 179,07 S.Q. M. 103,68 S.Q. M. 282,75 S.Q. M.
3 DORMITORIOS 3 BAÑOS 1 POWDER ROOM TERRAZA PRIVADA
Apartamentos 1503 – 1506
Superficie interior: Superficie de terraza: Superficie total: 1.932,50 S.Q. FT. 977,33 S.Q. FT. 2.909,83 S.Q. FT. 179,60 S.Q. M. 90,83 S.Q. M. 270,43 S.Q. M.
3 DORMITORIOS 3 BAÑOS 1 POWDER ROOM TERRAZA PRIVADA
Pavimento general. Porcelánico 60 x 60 cm. Tipo calidad IP4. Recubrimientos paredes y techo. Pintura blanca temple lisa. Carpintería de aluminio gris antracita. Ventana corredera de dos hojas con vidrio.
EQUIPAMIENTO INCLUIDO
Aire acondicionado inverter.
Calentador eléctrico de alta eficiencia.
Equipamiento de alta eficiencia & ahorro de energía.
Fregadero de acero lnox. Grifería de acero lnox. Vitrocerámica eléctrica. Campana de horno lnox. Horno eléctrico. Microondas. Frigorífico.
Pavimento general. Porcelánico 60 x 60 cm. Tipo calidad IP4. Recubrimientos paredes y techo. Pintura blanca temple lisa.Carpintería de aluminio gris antracita. Ventana corredera de dos hojas con vidrio. Recubriemiento pared. Mosaico parde texturizado. Acabado textil. Armario empotrado. Acabado madera.
Pavimento general. Porcelánico 60 x 60 cm. Tipo calidad IP4. Recubrimientos paredes y techo pintura blanca temple lisa. Carpintería de aluminio gris antracita. Ventana corredera de dos hojas con vidrio. Armario empotrado. Paneles acabado madera blanca lisa y hojas vidrio
Revestimiento paredes y suelo Porcelánico monoporosa 60x60 cm. Tipo calidad IP4. Revestimiento pared ducha. Porcelánico monoporosa con textura. Tipo calidad IP4. Revestimiento techo o pintura blanca temple lisa. Recubrimiento pared. Alicatado porcelánico monoporosa acabado brillo.
Revestimiento paredes y suelo Porcelánico monoporosa 60x60cm. Tipo calidad IP4.
Revestimiento pared ducha. Porcelánico monoporosa con textura. Tipo calidad IP4. Recubrimiento techo pintura blanca temple lisa. Plato de ducha. Encimera lavamanos y sifón. Pack ducha monomando. Inodoro. Bajo consumo de agua.
Pavimento porcelánico 60 x 60 cm. Tipo calidad IP4. Recubrimiento techo Pintura blanca temple lisa. Barandilla acristalada. Paneles de vidrio y perfilería inferior de aluminio. Carpintería de aluminio gris antracita. Ventana corredera de dos hojas con vidrio.
Pavimento porcelánico 60 x 60 cm. Tipo calidad IP4. Recubrimiento techo Pintura blanca temple lisa. Cesped natural. Carpintería de aluminio gris antracita. Ventana corredera de dos hojas con vidrio.
Si estás interesado en obtener más información sobre la compra de un piso o propiedad, no dudes en contactarnos. Nuestro equipo de profesionales está aquí para responder a todas tus preguntas y proporcionarte la asesoría necesaria.
Comparar listados
CompararPor favor ingrese su nombre de usuario o dirección de correo electrónico. Recibirá un enlace para crear una nueva contraseña por correo electrónico.